
Ostrowska Giełda Nieruchomości
63-400 Ostrów Wielkopolski, ul. Wrocławska 12
62 592 18 13, 601 700 413
ogn.ostrow@wp.pl
SPRZEDAŻ • MIESZKANIA • RYNEK WTÓRNY
Ostrów Wielkopolski, Osiedle Robotnicze
Numer oferty: M-803
Cena: 630 000 zł
Cena za m2: 7063 zł

Szczegóły
| Powierzchnia (m2) | 89.2 | Forma własności | Własność | |
| Stan lokalu | Bardzo dobry | Liczba łazienek | 1 | |
| Liczba pokoi | 4 | Liczba poziomów | 1 | |
| Piętro | 1 | Typ kuchni | Półotwarta | |
| Liczba pięter | 1 | Miejsce postojowe | Parking naziemny | |
| Rok budowy | 1939 | Materiał budowy | Cegła | |
| Typ budynku | Dom wielorodzinny | Stan budynku | Dobry | |
| Dostępne od | od zaraz | - |
Media
| Ogrzewanie | Gazowe | Gaz | Tak | |
| Ogrzewanie (instalacja) | Tak | - |
Działka
| Prąd | Nie | - |
Udogodnienia
Opis
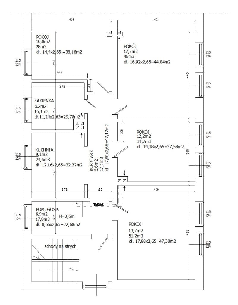
Przedstawiamy Państwu ofertę sprzedaży mieszkania, który położone jest na pierwszym piętrze budynku wielorodzinnego, w śródmieściu Ostrowa Wielkopolskiego, przy ulicy Osiedle Robotnicze. Jest to spokojne osiedle otoczone dużą ilością zieleni. Przedmiotem sprzedaży jest lokal mieszkalny stanowiący odrębną własność z udziałem w gruncie i księgą wieczystą, która nie posiada żadnych obciążeń. Opłaty na rzecz wspólnoty mieszkaniowej wynoszą jedynie 410,00 zł/mies., a pozostałe opłaty za media naliczane są na podstawie wskazań liczników. Powierzchnia mieszkania wynosi 89,20 m2, lokal jest rozkładowy, słoneczny, usytuowany od strony zachodniej i wschodniej. Wewnątrz mamy do dyspozycji 4 pokoje, kuchnię, łazienkę przedpokój i pomieszczenie techniczne mogące służyć jako garderoba lub spiżarnia. Do lokalu przynależą trzy pomieszczenia znajdujące się w piwnicy budynku, z czego jedno z tych pomieszczeń to schron. Ich powierzchnia łączna to 40,37 m2. Mamy również możliwość korzystania z trzeciej kondygnacji - strychu. Zestawienie powierzchni: pokój - 10,80 m2 pokój - 17,70 m2 pokój - 12,20 m2 pokój - 19,70 m2 kuchnia - 9,10 m2 łazienka - 6,20 m2 korytarz - 6,60 m2 pomieszczenie techniczne - 6,90 m2 Mieszkanie jest po generalnym remoncie, nie wymaga żadnych nakładów finansowych, wnętrze jest urządzone w przytulnym i nowoczesnym stylu, wykończone materiałami wysokiej jakości. Wymienione zostały instalacje elektryczne, gazowe i wodno - kanalizacyjne. Podłoga została wzmocniona płytą osb oraz docieplona keramzytem i pianą poliuretanową. Ze względów użytkowych i estetycznych podłogi zostały pokryte panelami. Sufity podwieszono płytą karton gips i zastosowano ocieplenie wełną mineralną. Jedna ze ścian konstrukcyjnych znajdująca się od strony północnej została ocieplona od wewnątrz styropianem o grubości 10 centymetrów. Zamontowane są wysokiej klasy okna z profili PCV, 3 szybowe w kolorze brązowo - białym a ściany zostały pokryte gładzią gipsową i wyrównane płytą karton - gips. Stolarka drzwiowa wewnętrzna jest w kolorze białym. Widna, półotwarta kuchnia jest umeblowana meblami na wymiar, posiada nowy sprzęt gospodarstwa domowego - lodówkę, płytę indukcyjną, zmywarkę i piekarnik elektryczny. Ściany i podłoga łazienki zostały wyłożone płytkami ceramicznymi, zamontowano w niej geberit, kabinę prysznicową i umywalkę wraz z szafką. Centralne ogrzewanie i wodę ciepłą zasila nowoczesny, kondensacyjny kocioł gazowy dwu funkcyjny firmy Brotje a grzejniki są stalowe. Cena obejmuje zabudowę trwała - meble kuchenne wraz ze sprzętem agd, stołem i krzesłami oraz sofa i szafka rtv znajdująca się w salonie. Do mieszkania przynależy teren działki oraz drewniany budynek gospodarczy. Odnowiona została klatka schodowa i schody wiodące do wejścia, wymieniono również okna w częściach wspólnych budynku. Doskonała lokalizacja, w tej części miasta znajdują się liczne placówki handlowe, markety spożywcze, zieleniak miejski, kościół, ośrodek zdrowia, szkoła podstawowa, przedszkole, żłobek miejski, plac zabaw dla dzieci z boiskiem, liczne tereny zielone, las oraz orlik i lodowisko miejskie. Poruszanie się po mieście zapewniają przystanki komunikacji miejskiej. Ofertę kierujemy szczególnie do osób ceniących sobie dostęp do powyższej infrastruktury oraz rodzin z dziećmi. Zapraszamy Państwa do kontaktu celem umówienia terminu prezentacji.
Przedstawiona oferta cenowa ma charakter informacyjny, nie stanowi oferty handlowej w rozumieniu Art.66 par.1 Kodeksu Cywilnego.




























